-
Thermofassade | Fenster mit Isoliergas-Verglasung
Heiz-, Klima- und Lüftungssystem | Inverter-Klimaanlagen
Sicherheitstür | Anschluss an städtische Kanalisation
Begrünte Außenanlage mit Sichtschutz | Grillbereich im Außenbereich
Bau- und Nutzungsgenehmigung vorhanden
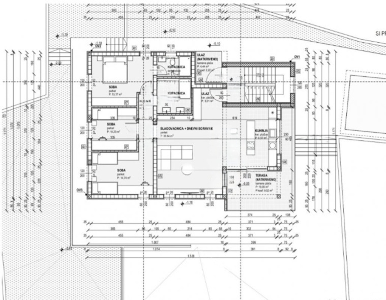
In einer modernen Boutique-Residenz mit nur drei Wohneinheiten liegt diese hochwertige Erdgeschosswohnung in Malo Zečevo bei Rogoznica – nur ca. 100 Meter vom Meer entfernt. Die Gesamtfläche beträgt ca. 122 m² mit ca. 103 m² Wohnfläche und einer 19 m² großen Terrasse. Zur Wohnung gehören ein privater Pool (32 m²), ein Kellerabteil (12 m²) sowie ein eigener PKW-Stellplatz.
Die Raumaufteilung umfasst einen Eingangsbereich, offenen Wohn- und Essbereich mit Küche, drei Schlafzimmer (Master mit Bad en suite), ein weiteres Badezimmer sowie Flur. Vom Wohnbereich gelangt man direkt auf die Terrasse und in den privaten Garten mit Pool. Die Westausrichtung bietet schöne Sonnenuntergänge.
Der Neubau (Fertigstellung Anfang 2026) wird nach modernen Energie- und Baustandards errichtet und verfügt über Thermofassade, Fenster mit Isoliergas, Heiz-, Klima- und Lüftungssystem, Inverter-Klimaanlagen sowie Sicherheitstüren. Bau- und Nutzungsgenehmigung liegen vor, Anschluss an die städtische Kanalisation ist vorhanden.
Die Außenanlage wird begrünt und mit Sichtschutz sowie Grillbereich gestaltet. Ruhige Lage mit kristallklarem Meer, Restaurant ca. 30 m, Zentrum Rogoznica ca. 1,8 km.
Gartenwohnung mit Privatpool in unmittelbarer Meeresnähe – ideal als Ferienimmobilie oder Investment an der Adriaküste.
Verkaufspreis: 400.000 €





























