
Architektur wird hier zur Haltung – klar, reduziert und von zeitloser Eleganz getragen. Diese außergewöhnliche Maisonette steht für ein Wohnerlebnis, das Privatsphäre, Großzügigkeit und die Nähe zur Adriaküste auf besondere Weise vereint.
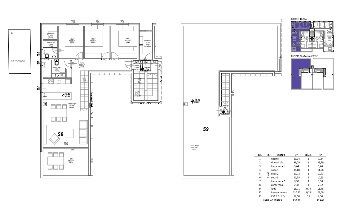
Auf einer Wohnfläche von 93,83 m² entfaltet sich auf der unteren Ebene ein durchdachtes Raumkonzept, das Funktionalität und Ästhetik in harmonischen Einklang bringt. Drei komfortable Schlafzimmer, zwei stilvoll gestaltete Badezimmer sowie ein separates Gäste-WC schaffen ein Ambiente, das sowohl Rückzug als auch Alltag auf höchstem Niveau ermöglicht. Der offen konzipierte Wohn- und Essbereich mit integrierter Küche bildet das Herzstück – lichtdurchflutet, fließend und mit direktem Übergang zur Loggia, wodurch Innen- und Außenraum elegant miteinander verschmelzen. Ein integrierter Wirtschafts- bzw. Abstellraum ergänzt das Raumangebot um praktische Raffinesse.
Die obere Ebene ist vollständig der privaten Dachterrasse gewidmet und eröffnet mit 110,25 m² einen außergewöhnlichen Außenbereich. Hier verbinden sich Weitblick, Ruhe und Exklusivität zu einem Ort, der das Gefühl von Freiheit und Rückzug zugleich vermittelt.
Hochwertige Bauausführung, elektrische Fußbodenheizung, moderne Klimatisierung sowie zeitgemäße Fensterlösungen unterstreichen den gehobenen Anspruch dieser Immobilie. Ein zugeordneter Stellplatz rundet das Gesamtbild ab.
Die Fertigstellung ist für Mai 2026 vorgesehen.
Auf Wunsch zeigen wir Ihnen, wie sich der Erwerb dieser Villa durch unser Konzept auch mit angepasstem Eigenkapitaleinsatz realisieren lässt.
Kaufpreis: 474.880 €






















