Offener Wohn-, Ess- und Küchenbereich | vier Schlafzimmer | vier Badezimmer | Flur- und Eingangsbereiche | Abstellräume | Waschraum | Technikraum | Maschinenraum | Entertainmentbereich | überdachte Terrasse | Terrassenflächen | Balkon | privater Pool | Garage | moderne Architektur | klare Raumstruktur
Klare Linien, großzügige Raumstrukturen und ein durchdachtes Wohnkonzept prägen diese Villa, die zeitgemäße Architektur mit Privatsphäre und Wohnkomfort verbindet.
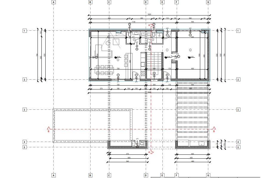
Auf einem 806 m² großen Grundstück bietet das Anwesen eine Wohnfläche von ca. 205,6 m² sowie eine Nutzfläche von rund 37,9 m². Das Erdgeschoss empfängt mit einem Eingangsbereich (9,70 m²) und führt in den offen gestalteten Wohn- und Essbereich mit integrierter Küche (40,98 m²) – das kommunikative Zentrum des Hauses. Ergänzt wird diese Ebene durch Flur (5,04 m²), Badezimmer (4,47 m²), Abstellraum (2,84 m²) sowie die Garage (25,79 m²).
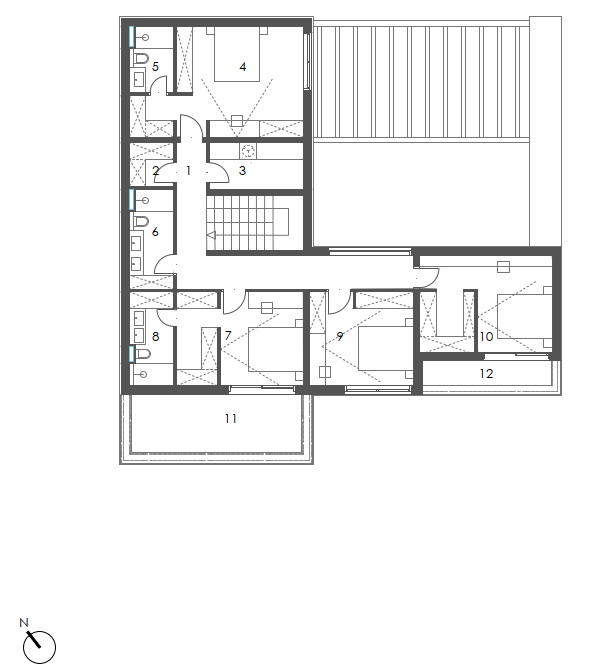
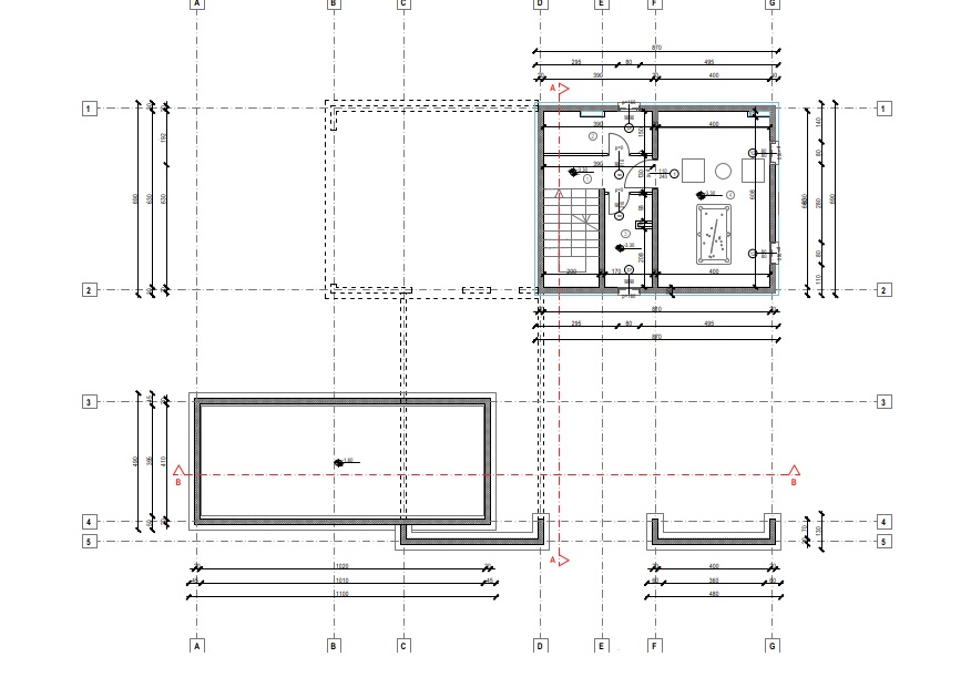
Im Obergeschoss befinden sich vier Schlafzimmer (20,96 m², 15,64 m², 12,92 m², 16,80 m²) und drei Badezimmer (3,66 m², 5,59 m², 5,29 m²). Ein Flur (17,26 m²), Abstellraum (2,50 m²) und Waschraum (5,78 m²) ergänzen diese Ebene. Das Untergeschoss bietet einen Entertainmentbereich (25,02 m²), Flur (11,13 m²) sowie Technikraum (5,44 m²) und Maschinenraum (6,65 m²). Der Außenbereich umfasst eine überdachte Terrasse (27,75 m²), eine Terrasse (68,56 m²), einen Balkon (4,21 m²) sowie einen Swimmingpool (39,70 m²).
Mit 5 Zimmern, darunter 4 Schlafzimmern und 4 Badezimmern, verbindet diese Immobilie architektonische Klarheit mit großzügigem Raumgefühl und bietet gleichzeitig eine interessante Investitionsmöglichkeit in einer gefragten Küstenregion Kroatiens.
Gerne zeigen wir Ihnen, wie sich der Erwerb dieser Villa durch unser Konzept auch mit angepasstem Eigenkapitaleinsatz realisieren lässt.
Kaufpreis: 1.300.000 €




















