Offener Wohn-, Küchen- und Essbereich | bodentiefe Fensterflächen | zwei Badezimmer | zwei Schlafzimmer | Vorzimmer | Eingangsbereich | Balkon | privater Gartenbereich | moderne Architektur | Garage im Gebäude
Architektur wird dann besonders, wenn sie nicht nur gestaltet, sondern Atmosphäre schafft. In gefragter Lage von Primosten entsteht diese Gartenwohnung, die zeitgemäße Klarheit mit mediterraner Lebensart verbindet und ein Wohngefühl von Ruhe und Offenheit vermittelt.
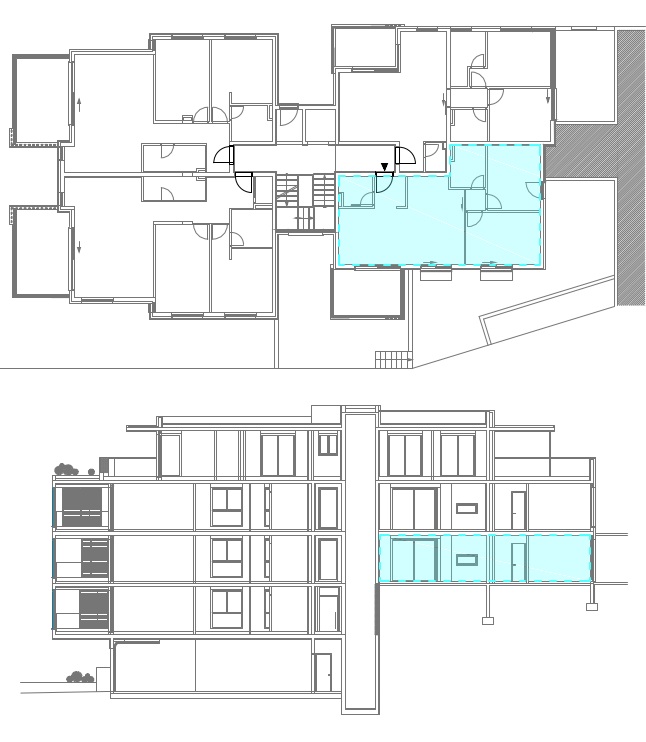
Der Eingangsbereich mit 2,95 m² führt in eine durchdachte Raumkomposition, die Struktur und Großzügigkeit vereint. Mittelpunkt ist der offen gestaltete Wohn-, Küchen- und Essbereich mit 28 m² – ein lichtdurchfluteter Lebensraum mit fließendem Übergang ins Freie. Zwei Schlafzimmer (12,40 m² und 11,10 m²) bieten angenehme Rückzugszonen. Zwei stilvoll geplante Bäder (3,05 m² und 4,55 m²) sowie ein funktional integriertes Vorzimmer mit 1,30 m² ergänzen das Wohnkonzept effizient und klar.
Auf 63,35 m² Wohnfläche entsteht ein harmonisches Zusammenspiel aus Raum und Licht. Der Balkon mit 9,50 m² erweitert den Innenraum, während der großzügige Eigengarten mit 100,20 m² eine außergewöhnliche Dimension von Privatheit eröffnet – ein geschützter Außenraum für entspannte Stunden unter südlichem Himmel.
Die Lage in Primosten vereint Küstennähe mit dalmatinischer Atmosphäre und hoher Lebensqualität. Eine Garage innerhalb des Projekts rundet das Angebot ab – sie steht als wertstabile Ergänzung zur Verfügung und unterstreicht Komfort, Sicherheit und nachhaltigen Mehrwert.
Auf Wunsch zeigen wir Ihnen, wie sich der Erwerb dieser Immobilie durch unser Konzept auch mit optimiertem Eigenkapitaleinsatz realisieren lässt.
Kaufpreis: 510.055 €














