Bodentiefe Fensterflächen | moderner Wohn- und Küchenbereich | zwei Badezimmer | zwei Schlafzimmer | Eingangsbereich | zusätzliches Vorzimmer | Balkon | durchdachte Raumaufteilung | moderne Architektur | Garage optional im Gebäude
Zwischen Licht, Meer und stiller Weite entsteht ein Ort, der mehr ist als ein Zuhause – geprägt von mediterraner Gelassenheit, architektonischer Klarheit und zeitloser Eleganz. In begehrter Lage von Primošten, nur wenige Schritte von der Küste entfernt, verbindet diese stilvolle 3-Zimmer-Wohnung Lebensqualität mit nachhaltigem Wertpotenzial.
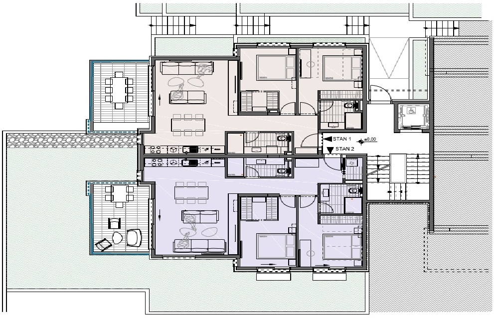
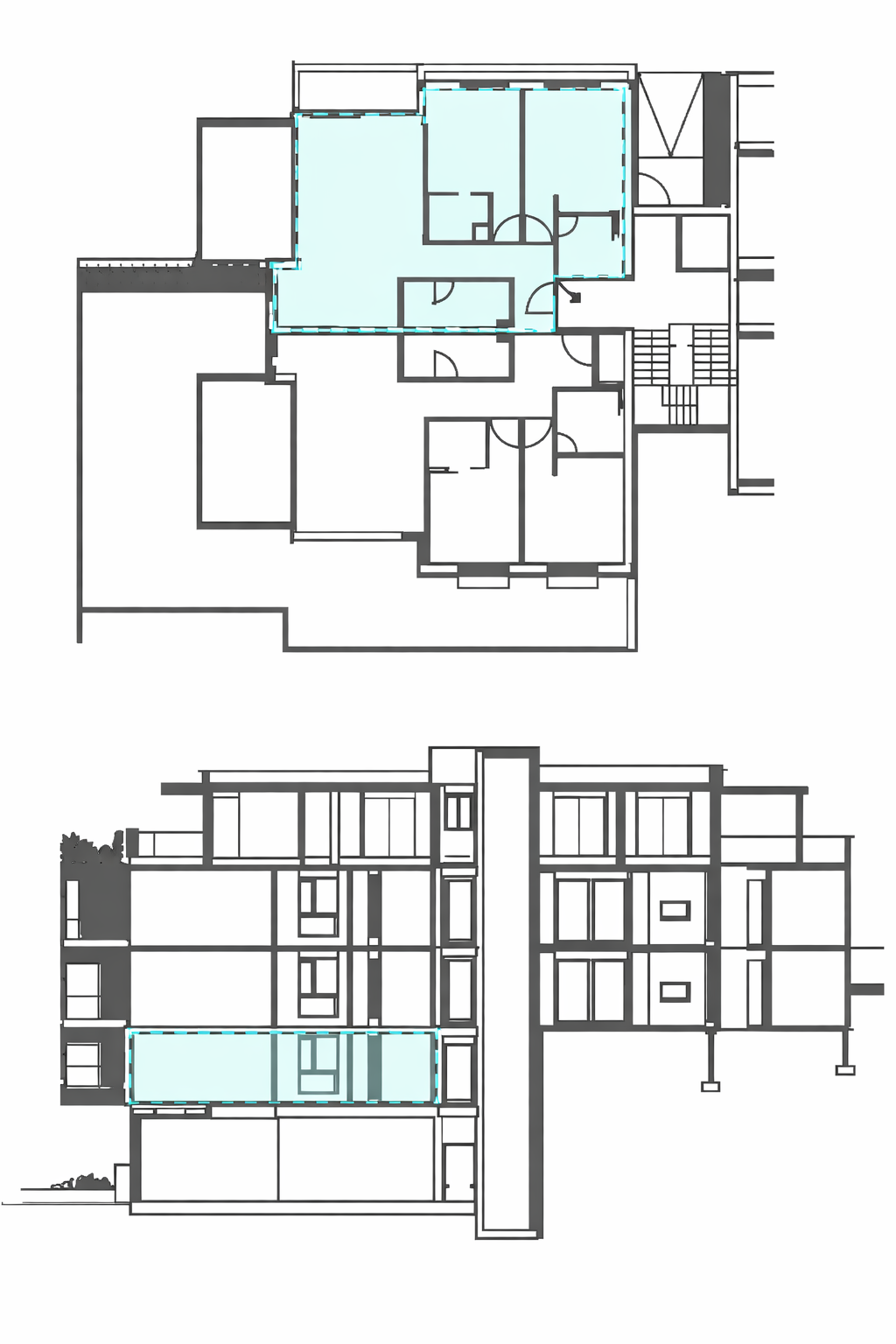
Der durchdachte Grundriss eröffnet sich über einen einladenden Eingangsbereich (2,15 m²) und führt in den offen gestalteten Wohn- und Küchenbereich mit 29,90 m² – lichtdurchflutet und harmonisch proportioniert. Großzügige Fensterflächen schaffen fließende Übergänge und unterstreichen die moderne Linienführung. Zwei komfortable Schlafzimmer (13,80 m² und 13,45 m²) bieten ruhige Rückzugsorte, ergänzt durch zwei elegant ausgestattete Bäder (4,50 m² und 5,15 m²) sowie ein weiteres Vorzimmer (4,95 m²).
Die Wohnfläche von 73,90 m² wird durch einen Balkon mit 7,15 m² stilvoll erweitert – ein Ort für sonnige Stunden und entspannte Momente mit Blick auf die Küstenlandschaft und das Meer.
Diese Immobilie eignet sich sowohl für anspruchsvolle Eigennutzer als auch für Investoren, die auf Lagequalität, Architektur und nachhaltige Wertentwicklung setzen.
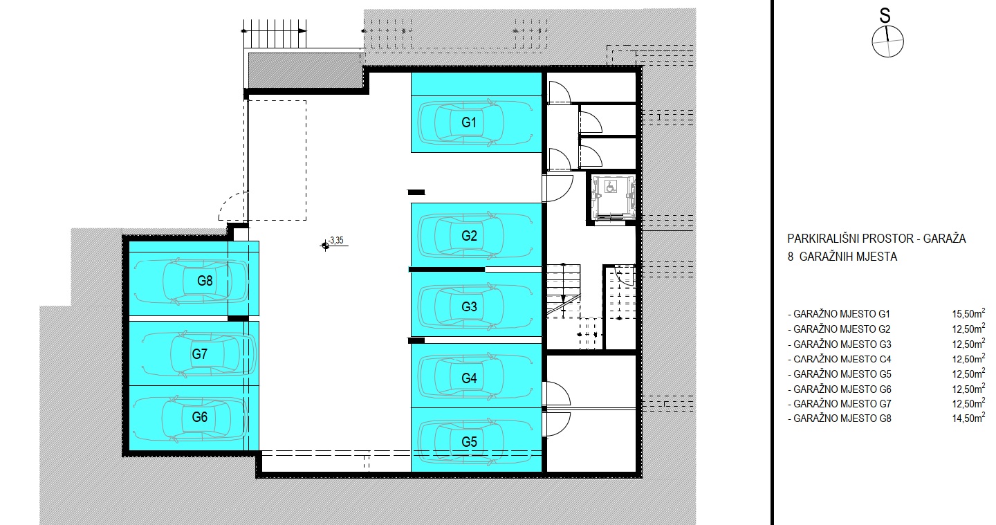
Eine Garage im Objekt steht zum Erwerb bereit und ergänzt das Angebot um Komfort, Sicherheit und zusätzliche Wertbeständigkeit.
Gerne zeigen wir Ihnen, wie sich der Erwerb dieser Immobilie durch unser Konzept auch mit optimiertem Eigenkapitaleinsatz realisieren lässt.
Kaufpreis: 486.300 €















