
Wenn Großzügigkeit zur Selbstverständlichkeit wird und Architektur Raum für Ruhe schafft, entsteht ein Zuhause mit besonderer Ausstrahlung. Dieses exklusive Apartment vereint klare Linien, weitläufige Außenbereiche und die Nähe zur Adria zu einer Residenz, die Privatsphäre und mediterrane Lebensqualität auf höchstem Niveau erlebbar macht.
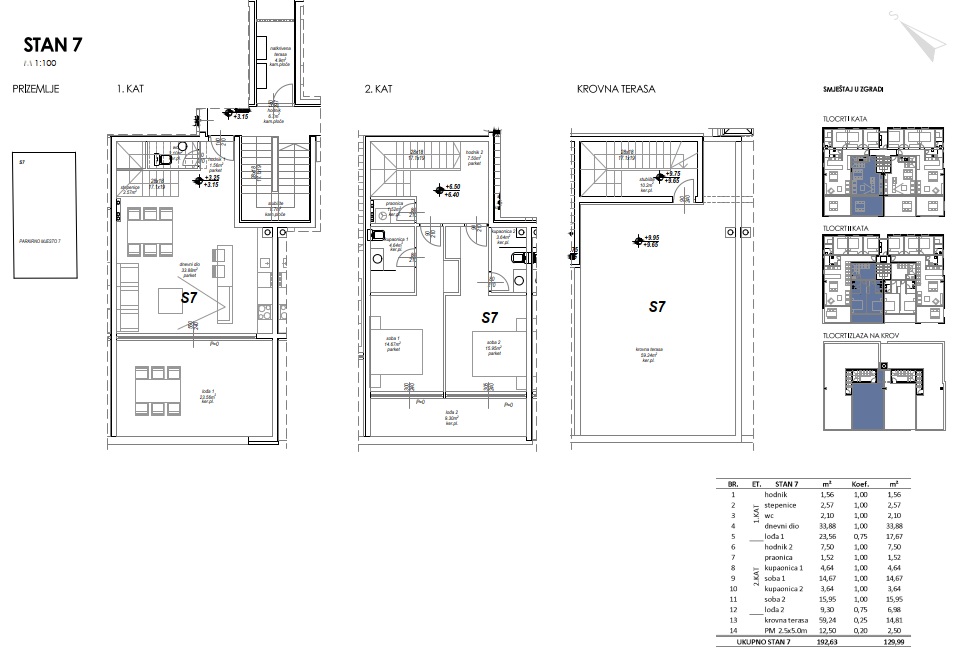
Auf einer Gesamtnutzfläche von 192,53 m² entfaltet sich ein durchdachtes Raumkonzept mit drei komfortablen Schlafzimmern, zwei elegant ausgeführten Badezimmern sowie einem separaten Gäste-WC. Der offen gestaltete Wohn- und Essbereich mit integrierter Küche bildet das Herzstück der Wohnung und öffnet sich zu zwei Loggien, die den Innenraum harmonisch nach außen erweitern. Ein integrierter Wirtschafts- bzw. Abstellraum ergänzt die funktionale Struktur.
Die private Dachterrasse mit 58,67 m² schafft einen außergewöhnlichen Rückzugsort unter freiem Himmel und vereint Weitblick und Privatsphäre in besonderer Weise. Hochwertige Bauqualität, Energieklasse A+, elektrische Fußbodenheizung, Klimatisierung, moderne Fensterlösungen sowie ein privater Stellplatz unterstreichen den gehobenen Anspruch dieser Immobilie. Die Fertigstellung ist für Mai 2026 vorgesehen.
Kaufpreis: 454.965 €
Ihr Ansprechpartner

Dino Pesa








Sie sehen gerade einen Platzhalterinhalt von Standard. Um auf den eigentlichen Inhalt zuzugreifen, klicken Sie auf den Button unten. Bitte beachten Sie, dass dabei Daten an Drittanbieter weitergegeben werden.