m2

Wohnfläche

Zimmer

Baujahr

Preis [€]

ZADAR Region – Mediterrane Eleganz mit privatem Garten und Pool, eine Luxuswohnung mit besonderer Ausstrahlung (S2)

Privlaka, Zadar

Manche Lagen erzählen ihre eigene Geschichte – hier beginnt sie nur 50 Meter von der Adria entfernt. In privilegierter Position der Zadar-Region präsentiert sich dieses hochwertige 3-Zimmer-Apartment (S2) im Erdgeschoss eines modernen Neubauprojekts mit nur acht Einheiten als stilvoller Rückzugsort mit außergewöhnlicher Nähe zum Meer.

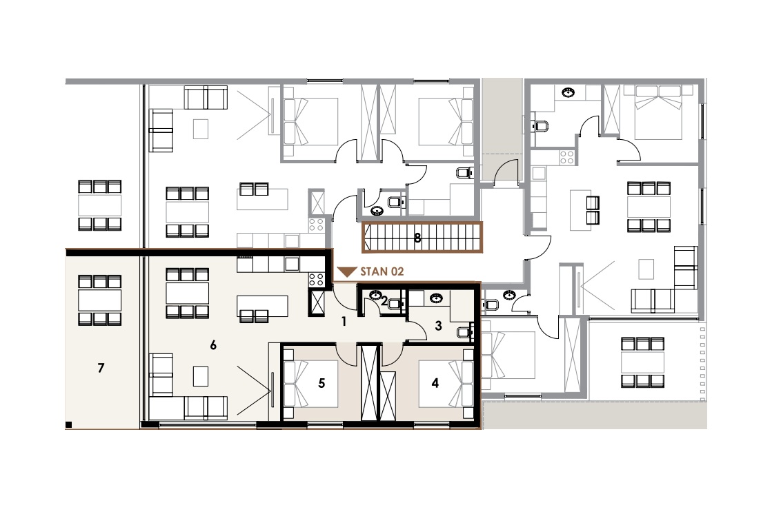
Auf 69,85 m² Wohnfläche entfaltet sich ein klar strukturiertes Raumkonzept mit offenem Wohn-, Ess- und Kochbereich, zwei Schlafzimmern, Badezimmer, separatem WC und praktischem Abstellraum. Großzügige Fensterflächen durchfluten die Räume mit Licht und eröffnen einen direkten Blick auf die Küste.

Ein besonderes Alleinstellungsmerkmal ist der private Außenbereich: Der rund 140,61 m² große Garten, die 19,42 m² große Terrasse sowie der eigene 36 m² Swimmingpool schaffen ein exklusives Ambiente unter freiem Himmel. Ein zugeordneter Stellplatz mit 12,65 m² ergänzt das Angebot.

Energieklasse A+, elektrische Fußbodenheizung, Klimageräte in allen Räumen, hochwertige Keramikfliesen sowie moderne PVC-/Aluminiumfenster mit elektrischen Rollläden und Insektenschutz stehen für zeitgemäßen Komfort. Die mediterran gestaltete Außenanlage unterstreicht den architektonischen Anspruch dieses Projekts.

Fertigstellung: Mai 2026

Kaufpreis: 545.000 €

Ihr Ansprechpartner

Dino Pesa

Dino Pesa

Immobilienexperte
pesa@seaview-realestate.com
+43 699 1977 8000

69,85 m²

Wohnnutzfläche

2

Schlafzimmer

19,42 m²

Terrasse

1

Badezimmer

Mediterrane Gartenlandschaft mit Pool

545.000 €

Kaufpreis

HIGHLIGHTS

  • Erstklassige Lage nur 50 m zur Adria | Erdgeschoss-Apartment (S2) in Anlage mit nur 8 Einheiten | 69,85 m² Wohnfläche | Direkter Blick auf die Küste | Privater Garten mit 140,61 m² | Terrasse mit 19,42 m² | Eigener Swimmingpool mit 36 m² | Zugeordneter Stellplatz (12,65 m²) | Energieklasse A+ | Fertigstellung Mai 2026 | Ideal als Haupt- oder Ferienwohnsitz

LAGE

  • Hochwertige Lage in unmittelbarer Küstennähe

AUSSTATTUNG

  • Elektrische Fußbodenheizung | Klimaanlagen in allen Räumen | Hochwertige Keramikfliesen | PVC-/Aluminiumfenster | Elektrische Rollläden | Insektenschutz | Separates WC | Abstellraum | Großzügige Fensterflächen | Mediterran gestaltete Außenanlage

Seaview Rendering

Grundrisspläne

Some text

Präsentation

Sie sehen gerade einen Platzhalterinhalt von Standard. Um auf den eigentlichen Inhalt zuzugreifen, klicken Sie auf den Button unten. Bitte beachten Sie, dass dabei Daten an Drittanbieter weitergegeben werden.

Weitere Informationen

Jetzt teilen

Exposé anfragen

Some text

    Unser Angebot für Sie